导航 搜索
    TPU平面包络环面蜗杆减速器



    注:由于市场价格时有波动,以下价格仅供参考,实际以销售人员报价为准,详情请拨打:13861821233

    商品介绍

    TP型平面包络环面蜗杆减速机产品简介及标记     TPG减速机

    TP型平面包络环面蜗杆减速机(JB/T9051-1991)为平面一次包络蜗杆传动。中心距:100、125、160、200、250、315、400、500。速比:10、12.5、16、20、25、31.5、40、50、60。平面包络环面蜗杆减速机是一种新兴的传动装置,其承载能力大,传动效率高,结构紧凑、合理。这种减速机可以广泛地应用于各种传动机械中的减速传动,如冶金、矿产、起重、化工、建筑、橡塑、船舶等行业以及其它机械设备上,适用工作环境温度为-40℃~+40℃,输入轴转速不大于1500转/分,蜗杆轴可正反两方向旋转。此减速机是按照中华人民共和国机械行业标准JB/T9051——1999《平面包络环面蜗杆减速机》设计制造。

    型号与标记示例

    1 型号

    标记示例

    例 蜗杆在蜗轮之下, 中心距为200mm, 公称传动比为10, 第二种装配型式, 有风扇冷却的平面 包络环面蜗杆减速器: 减速器 TPU200 - 10 - 2F JB/T 9051—1999

    TP型平面包络环面蜗杆减速机基本参数

    中心距a                           (mm)

    型号
    中心距a
    TPG
    第一系列
    80
    100
    第二系列
    TPU
    第一系列
    125
    160
    200
    250
    315
    400
    500
    第二系列
    140
    180
    224
    280
    355
    450
    TPS
    第一系列
    125
    160
    200
    250
    315
    400
    500
    第二系列
    140
    180
    224
    280
    355
    450
    TPA
    第一系列
    125
    160
    200
    250
    315
    400
    500
    第二系列
    140
    180
    224
    280
    355
    450

    注:优先选用第一系列,表中第二系列的中心距仅提出型式规格。

    减速器的公称传动比i

    型      号
    TPG      TPU       TPS        TPA
    公称传动比i
    10
    12.5
    16
    20
    25
    31.5
    40
    50
    63

    蜗杆螺旋线方向   为右旋。

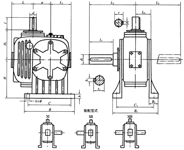
    TPG80、TPG100、通用型减速机形式及外形尺寸(Ⅰ—Ⅲ)

    TPG通用型减速器形式及外形尺寸                             (mm)

    型号
    a
    B
    B1
    B2
    C
    C1
    H
    H1
    L
    L1
    L2
    L3
    L4
    l
    l1
    d
    d1
    b
    b1
    t
    t 1
    h
    Ф
    质量(kg)
    TPG80
    80
    250
    242
    50
    220
    206
    100
    280
    381
    130
    210
    86
    201
    58
    110
    35
    45
    10
    14
    38
    48.5
    18
    19
    53
    TPG100
    100
    290
    284
    58
    250
    240
    110
    318
    464
    160
    235
    102
    254
    82
    110
    40
    55
    12
    16
    43
    59
    20
    19
    85

    TPG80、TPG100、通用型减速机形式及外形尺寸(Ⅳ—Ⅵ)

    TPG通用型减速器形式及外形尺寸                             (mm)

    型号
    a
    B
    B1
    C
    C1
    H
    H1
    L
    L1
    L2
    L3
    B2
    l
    l1
    d
    d1
    t
    t 1
    b
    b1
    h
    Ф
    质量(kg)
    TPG80
    80
    250
    242
    220
    206
    180
    360
    201
    381
    210
    86
    50
    58
    110
    35
    45
    38
    48.5
    10
    14
    18
    19
    53
    TPG100
    100
    290
    284
    250
    240
    210
    415
    254
    464
    235
    102
    58
    82
    110
    40
    55
    43
    59
    12
    16
    20
    19
    85

    TPG通用型减速器形式及外形尺寸                             (mm)

     

    型号
    a
    (φ)D
    h1
    B
    B1
    C
    C1
    H
    H1
    L
    L2
    L3
    L4
    L5
    l
    l1
    d
    d1
    b
    b1
    t
    t 1
    L6
    h
    Ф
    质量(kg)
    TPG80
    80
    140
    5
    270
    260
    240
    230
    110
    86
    210
    100
    180
    180
    201
    58
    110
    35
    45
    10
    14
    38
    48.5
    75
    18
    19
    53
    TPG100
    100
    170
    5
    300
    300
    260
    260
    125
    102
    235
    125
    203
    210
    254
    82
    110
    40
    55
    12
    16
    43
    59
    90
    20
    19
    85

    TPG80、TPG100、通用型减速机形式及外形尺寸(Ⅺ—XIII)

    PG通用型减速器形式及外形尺寸                             (mm)

     

    型号
    a
    B
    B1
    C
    C1
    H1
    H
    B2
    L
    L1
    L2
    L3
    l
    l1
    d
    d1
    t
    t 1
    b
    b1
    h
    Ф
    质量(kg)
    TPG80
    80
    230
    242
    220
    206
    143
    180
    50
    100
    98
    210
    86
    58
    110
    35
    45
    38
    48.5
    10
    14
    18
    19
    53
    TPG100
    100
    270
    284
    220
    240
    172
    210
    58
    106
    123
    235
    100
    82
    110
    40
    55
    43
    59
    12
    16
    20
    19
    85

     

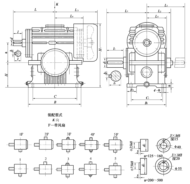
    TPU125、TPU160、TPU200、TPU250、TPU315、TPU400、TPU500通用型减速机形式及外形尺寸

    TPU通用型减速器形式及外形尺寸                             (mm)

    型号
    a
    B
    B1
    B2
    C
    C1
    H
    H1
    h
    L
    L1
    L2
    L3
    L4
    L5
    l
    l1
    d
    d1
    d2
    b
    b1
    t
    t 1
    Ф
    质量(kg)
    TPU125
    125
    300
    300
    70
    250
    250
    125
    422
    30
    307
    320
    185
    280
    217
    175
    82
    140
    40
    70
    80
    12
    20
    43
    74.5
    19
    157
    TPU160
    160
    380
    375
    100
    320
    310
    160
    540
    40
    375
    375
    210
    360
    280
    190
    82
    170
    50
    85
    95
    14
    25
    53.5
    90
    24
    258
    TPU200
    200
    450
    450
    125
    370
    370
    200
    650
    40
    420
    400
    235
    435
    345
    225
    82
    170
    55
    95
    110
    16
    28
    59
    101
    28
    475
    TPU250
    250
    600
    550
    150
    500
    450
    225
    820
    50
    530
    495
    290
    520
    408
    270
    105
    210
    65
    120
    140
    18
    32
    69
    127
    35
    800
    TPU315
    315
    720
    590
    120
    630
    500
    280
    990
    65
    630
    600
    360
    605
    492
    345
    130
    250
    80
    140
    160
    22
    36
    85
    148
    39
    1100
    TPU400
    400
    850
    720
    160
    750
    620
    320
    1200
    75
    720
    720
    425
    692
    540
    405
    165
    300
    100
    180
    200
    28
    45
    106
    190
    48
    2150
    TPU500
    500
    1060
    900
    200
    920
    760
    400
    1490
    90
    850
    840
    495
    845
    680
    488
    165
    350
    110
    200
    240
    32
    45
    117
    210
    56
    3600

    TPS125、TPS160、TPS200、TPS250、TPS315、TPS400、TPS500、通用型减速机形式及外形尺寸

    TPS通用型减速器形式及外形尺寸

    型号
    a
    (Ф)
    D
    (Ф)
    D1
    h1
    (Ф)
    B
    B1
    B2
    H
    L
    L1
    L2
    L3
    L4
    l
    l1
    d
    d1
    b
    b1
    t
    t 1
    h
    Ф
    质量
    (kg)
    TPS125
    125
    380
    280
    6
    330
    265
    193
    180
    307
    280
    203
    320
    175
    82
    140
    40
    70
    12
    20
    43
    74.5
    25
    19
    170
    TPS160
    160
    530
    380
    10
    470
    338
    268
    200
    375
    365
    280
    375
    190
    82
    170
    50
    85
    14
    25
    53.5
    90
    40
    24
    290
    TPS200
    200
    650
    480
    10
    580
    405
    335
    250
    425
    436
    330
    400
    210
    82
    170
    55
    95
    16
    28
    59
    101
    40
    32
    530
    TPS250
    250
    800
    600
    12
    700
    495
    400
    280
    530
    520
    406
    495
    270
    105
    210
    65
    120
    18
    32
    69
    127
    50
    35
    930
    TPS315
    315
    920
    710
    15
    820
    623
    460
    355
    630
    605
    492
    600
    340
    130
    250
    80
    140
    22
    36
    85
    148
    65
    39
    1300
    TPS400
    400
    1100
    850
    15
    1000
    740
    550
    420
    720
    692
    540
    720
    405
    165
    300
    100
    180
    28
    45
    106
    190
    75
    48
    2450
    TPS500
    500
    1340
    1060
    20
    1200
    920
    675
    530
    850
    845
    680
    840
    488
    165
    350
    110
    200
    32
    45
    117
    210
    90
    56
    3850

     

    TPA125、TPA160、TPA200、TPA250、TPA315、TPA400、TPA500、通用型减速机形式及外形尺寸

     

    TPA通用型减速器形式及外形尺寸

    型号
    a
    B
    B1
    B2
    C
    C1
    H
    H1
    h
    L
    L1
    L2
    L3
    L4
    L5
    l
    l1
    d
    d1
    d2
    b
    b1
    t
    t 1
    Ф
    质量(kg)
    TPA125
    125
    360
    300
    50
    310
    250
    180
    438
    30
    307
    320
    185
    280
    217
    175
    82
    140
    40
    70
    80
    12
    20
    43
    74.5
    19
    165
    TPA160
    160
    460
    320
    80
    400
    260
    225
    550
    40
    375
    375
    210
    365
    280
    190
    82
    170
    50
    85
    95
    14
    25
    53.5
    90
    24
    285
    TPA200
    200
    540
    400
    100
    450
    320
    250
    658
    40
    420
    400
    265
    436
    345
    224
    82
    170
    55
    95
    110
    16
    28
    59
    101
    28
    510
    TPA250
    250
    720
    480
    120
    620
    380
    315
    792
    50
    530
    495
    290
    520
    406
    270
    105
    210
    65
    120
    140
    18
    32
    69
    127
    35
    900
    TPA315
    315
    850
    600
    140
    750
    500
    400
    1000
    65
    630
    600
    360
    605
    492
    345
    130
    250
    80
    140
    160
    22
    36
    85
    148
    39
    1250
    TPA400
    400
    950
    720
    170
    850
    620
    500
    1200
    75
    720
    720
    425
    690
    540
    410
    165
    300
    100
    180
    200
    28
    45
    106
    190
    48
    2300
    TPA500
    500
    1180
    900
    200
    1040
    760
    630
    1530
    90
    850
    840
    495
    845
    680
    488
    165
    350
    110
    200
    240
    32
    45
    117
    210
    56
    3700

     

    TP型平面包络环面蜗杆减速机的额定输入功率P1(80~125)

    中心距a(mm)
    传动比i
    输入轴转速n1(r/min)
    500
    600
    750
    1000
    1500
    额定输入功率P1(kW)
    80
    10.0
    12.5
    16.0
    20.0
    25.0
    31.5
    40.0
    50.0
    63.0
    2.51
    2.07
    1.75
    1.36
    1.10
    0.92
    0.70
    0.57
    0.49
    2.83
    2.35
    2.01
    1.53
    1.25
    1.05
    0.79
    0.63
    0.55
    3.21
    2.74
    2.34
    1.78
    1.45
    1.23
    0.92
    0.74
    0.67
    3.85
    3.31
    2.83
    2.17
    1.76
    1.47
    1.08
    0.89
    0.78
    4.94
    4.17
    3.57
    2.74
    2.23
    1.88
    1.42
    1.13
    0.99
    100
    10.0
    12.5
    16.0
    20.0
    25.0
    31.5
    40.0
    50.0
    63.0
    4.85
    4.06
    3.46
    2.64
    2.15
    1.81
    1.37
    1.09
    0.96
    5.17
    4.55
    3.90
    2.98
    2.44
    2.04
    1.53
    1.24
    1.08
    6.30
    5.27
    4.55
    3.46
    2.81
    2.36
    1.78
    1.43
    1.25
    7.52
    6.26
    5.42
    4.16
    3.38
    2.83
    2.15
    1.72
    1.50
    8.23
    7.78
    6.66
    5.19
    4.24
    3.56
    2.69
    2.16
    1.88
    125
    10.0
    12.5
    16.0
    20.0
    25.0
    31.5
    40.0
    50.0
    63.0
    9.17
    7.66
    6.56
    5.08
    4.09
    3.43
    2.59
    2.09
    1.82
    10.00
    8.46
    7.42
    5.68
    4.58
    3.84
    2.90
    2.33
    2.03
    11.76
    9.84
    8.48
    6.43
    5.29
    4.44
    3.35
    2.70
    2.34
    13.91
    11.66
    10.21
    7.78
    6.28
    5.27
    3.98
    3.19
    2.78
    17.11
    13.97
    12.29
    9.42
    7.71
    6.47
    4.87
    3.92
    3.41

    TP型平面包络环面蜗杆减速机的额定输入功率P1(160~500)

    中心距a(mm)
    传动比i
    输入轴转速n1(r/min)
    500
    600
    750
    1000
    1500
    额定输入功率P1(kW)
    160
    10.0
    12.5
    16.0
    20.0
    25.0
    31.5
    40.0
    50.0
    63.0
    18.94
    15.75
    13.55
    10.40
    8.48
    7.12
    5.37
    4.32
    3.76
    21.13
    17.75
    15.23
    11.76
    9.65
    8.05
    6.07
    4.89
    4.25
    23.99
    20.16
    17.43
    13.34
    11.03
    9.18
    6.93
    5.58
    4.86
    27.94
    23.63
    20.48
    15.75
    12.81
    10.82
    8.11
    6.51
    5.67
    33.72
    28.67
    25.31
    19.01
    15.54
    13.02
    9.84
    7.89
    6.87
    200
    10.0
    12.5
    16.0
    20.0
    25.0
    31.5
    40.0
    50.0
    63.0
    35.11
    29.72
    25.10
    19.53
    15.65
    13.23
    9.92
    8.10
    7.27
    38.87
    32.76
    28.35
    21.53
    17.33
    14.60
    11.03
    8.85
    7.70
    43.61
    36.86
    31.40
    24.15
    19.53
    16.38
    12.39
    9.96
    8.67
    50.94
    41.90
    35.91
    27.72
    22.89
    19.22
    14.49
    11.66
    10.13
    58.93
    50.61
    42.84
    33.08
    27.09
    22.79
    17.22
    13.76
    11.97
    250
    10.0
    12.5
    16.0
    20.0
    25.0
    31.5
    40.0
    50.0
    63.0
    60.98
    50.08
    44.63
    34.55
    28.14
    23.63
    17.75
    14.39
    12.50
    67.35
    57.33
    49.67
    37.80
    30.98
    26.04
    19.64
    15.86
    13.76
    76.36
    64.68
    55.44
    42.21
    34.76
    29.19
    20.05
    17.75
    15.33
    87.23
    72.98
    62.58
    49.04
    39.90
    33.50
    25.20
    20.27
    16.59
    102.90
    89.04
    74.45
    57.75
    47.25
    43.16
    29.93
    24.05
    20.90
    315
    10.0
    12.5
    16.0
    20.0
    25.0
    31.5
    40.0
    50.0
    63.0
    116.90
    99.96
    83.90
    65.10
    53.45
    44.94
    33.81
    27.20
    23.63
    127.80
    108.20
    91.88
    71.09
    58.59
    49.14
    37.07
    29.82
    25.83
    148.10
    118.70
    102.80
    78.54
    64.89
    54.50
    41.06
    33.08
    28.88
    157.50
    134.40
    117.60
    89.25
    74.34
    62.37
    47.04
    38.80
    33.92
    187.72
    159.60
    136.50
    104.40
    87.15
    72.24
    54.39
    44.31
    38.54
    400
    10.0
    12.5
    16.0
    20.0
    25.0
    31.5
    40.0
    50.0
    63.0
    222.20
    193.20
    170.00
    131.30
    105.00
    88.52
    66.57
    53.55
    46.41
    257.40
    215.30
    183.80
    141.80
    114.50
    96.92
    72.24
    58.70
    51.14
    276.90
    236.30
    203.70
    156.50
    128.10
    107.10
    80.85
    65.21
    56.70
    311.00
    262.50
    230.00
    177.50
    144.90
    121.80
    91.98
    74.03
    64.37
    359.90
    304.50
    264.60
    200.60
    164.90
    138.60
    104.70
    84.11
    73.19
    500
    10.0
    12.5
    16.0
    20.0
    25.0
    31.5
    40.0
    50.0
    63.0
    393.90
    329.70
    286.70
    218.40
    180.60
    152.30
    114.50
    92.82
    80.85
    424.40
    361.20
    306.60
    240.50
    198.50
    164.90
    126.00
    101.40
    88.31
    462.50
    395.90
    340.20
    263.60
    219.50
    183.80
    138.60
    112.40
    97.34
    511.50
    432.60
    582.50
    486.20
    431.60
    326.60
    278.30
    233.10
    176.40
    141.80
    122.90
    382.20
    293.00
    243.60
    206.90
    154.40
    123.90
    108.20

    注:1.不带风扇的减速器,其功率值为本表的0.6~0.75倍。

             2.红框内为v>10m/s,应采用循环润滑。

    TP型平面包络环面蜗杆减速机的额定输出转矩T2

     

    中心距a(mm)
    传动比i
    输入轴转速n1(r/min)
    500
    600
    750
    1000
    1500
    输出转矩T2(N·m)
    80
    10.0
    12.5
    16.0
    20.0
    25.0
    31.5
    40.0
    50.0
    63.0
    416
    424
    450
    424
    421
    411
    381
    368
    386
    391
    402
    434
    404
    402
    394
    361
    350
    361
    363
    383
    414
    374
    382
    389
    352
    336
    371
    330
    351
    379
    348
    353
    353
    313
    311
    327
    282
    295
    319
    296
    297
    301
    274
    263
    276
    100
    10.0
    12.5
    16.0
    20.0
    25.0
    31.5
    40.0
    50.0
    63.0
    833
    863
    920
    855
    852
    836
    771
    740
    781
    740
    804
    872
    815
    813
    796
    731
    719
    748
    738
    763
    833
    758
    769
    776
    704
    681
    721
    667
    686
    752
    690
    701
    707
    649
    624
    659
    487
    569
    616
    580
    587
    592
    540
    523
    550
    125
    10.0
    12.5
    16.0
    20.0
    25.0
    31.5
    40.0
    50.0
    63.0
    1574
    1625
    1744
    1649
    1622
    1590
    1465
    1416
    1485
    1431
    1497
    1662
    1554
    1529
    1502
    1383
    1353
    1401
    1376
    1424
    1554
    1406
    1448
    1460
    1330
    1288
    1352
    1234
    1279
    1418
    1292
    1303
    1315
    1200
    1157
    1221
    1012
    1022
    1138
    1054
    1066
    1076
    979
    947
    998
    160
    10.0
    12.5
    16.0
    20.0
    25.0
    31.5
    40.0
    50.0
    63.0
    3254
    3344
    3600
    3375
    3360
    3296
    3032
    2924
    3074
    3025
    3141
    3411
    3217
    3223
    3148
    2896
    2841
    2941
    2808
    2918
    3194
    2920
    3018
    3016
    2751
    2661
    2806
    2480
    2593
    2846
    2615
    2659
    2700
    2444
    2361
    2489
    1995
    2098
    2345
    2129
    2150
    2166
    1978
    1906
    2009
    200
    10.0
    12.5
    16.0
    20.0
    25.0
    31.5
    40.0
    50.0
    63.0
    6032
    6311
    6670
    6338
    6199
    6125
    5607
    5486
    5942
    5565
    5797
    6350
    5891
    5789
    5706
    5264
    5140
    5322
    5106
    5336
    5754
    5286
    5343
    5384
    4919
    4755
    5006
    4521
    4599
    4990
    4603
    4752
    4796
    4370
    4229
    4446
    3487
    3703
    3969
    3704
    3749
    3791
    3462
    3327
    3503
    250
    10.0
    12.5
    16.0
    20.0
    25.0
    31.5
    40.0
    50.0
    63.0
    10710
    10875
    12132
    11476
    11415
    11225
    10301
    10026
    10523
    9857
    10374
    11378
    10583
    10596
    10439
    9623
    9461
    9791
    9135
    9569
    10386
    9454
    9732
    9829
    8165
    8697
    9095
    7909
    8185
    8888
    8332
    8473
    8561
    7793
    7545
    7482
    6220
    6657
    7049
    6614
    6689
    7353
    6170
    5968
    6284
    315
    10.0
    12.5
    16.0
    20.0
    25.0
    31.5
    40.0
    50.0
    63.0
    20531
    21706
    22807
    21624
    21683
    21349
    19621
    18952
    19893
    18704
    19579
    21048
    19904
    20039
    19700
    18163
    17789
    18380
    17717
    17561
    19258
    17592
    18168
    18353
    16722
    16208
    17135
    14281
    15073
    16703
    15163
    15788
    15940
    14547
    14443
    15298
    11316
    11933
    12924
    11958
    12339
    12308
    11213
    10996
    11587
    400
    10.0
    12.5
    16.0
    20.0
    25.0
    31.5
    40.0
    50.0
    63.0
    39025
    41954
    46214
    43614
    42595
    42053
    38634
    37314
    39072
    37673
    38961
    42106
    39703
    49424
    38855
    35397
    35019
    36391
    33126
    34961
    38161
    35055
    35867
    36066
    32927
    31952
    33642
    28201
    29441
    32667
    30158
    30774
    31129
    28446
    27559
    29032
    21757
    22768
    25055
    22977
    23348
    23615
    21587
    20874
    22006
    500
    10.0
    12.5
    16.0
    20.0
    25.0
    31.5
    40.0
    50.0
    63.0
    69181
    71595
    77939
    72547
    73264
    72352
    66450
    64677
    68066
    62115
    65363
    70237
    67338
    67894
    66108
    61738
    60493
    62841
    55330
    53247
    63733
    59045
    61458
    61895
    56446
    55074
    57755
    46382
    48519
    35214
    36353
    40867
    37410
    39404
    39716
    36369
    35191
    36953
    54285
    49782
    51736
    52878
    47750
    46123
    48799

    注:1.不带风扇的减速器,其转矩值为本表的0.6~0.75倍。

                    2.红框内为v>10m/s,应采用循环润滑。

                    3.本标准减速器可承受短时间峰值负荷,峰值转矩为额定转矩的2.5倍。

    TP型平面包络环面蜗杆减速机的传动总效率η

    中心距a(mm)
    传动比i
    输入轴转速n1(r/min)
    500
    600
    750
    1000
    1500
    效率η(%)
    80
    10.0
    12.5
    16.0
    20.0
    25.0
    31.5
    40.0
    50.0
    63.0
    87
    86
    84
    82
    80
    74
    71
    68
    65
    87
    86
    85
    83
    81
    75
    72
    70
    66
    89
    88
    87
    83
    83
    79
    75
    72
    69
    90
    89
    88
    84
    84
    80
    76
    73
    70
    90
    89
    88
    85
    84
    80
    76
    73
    70
    100~200
    10.0
    12.5
    16.0
    20.0
    25.0
    31.5
    40.0
    50.0
    63.0
    90
    89
    87
    85
    83
    77
    74
    71
    68
    90
    89
    88
    86
    84
    78
    75
    73
    69
    92
    91
    90
    86
    86
    82
    78
    75
    72
    93
    92
    91
    87
    87
    83
    79
    76
    73
    93
    92
    91
    88
    87
    83
    79
    76
    73
    250~315
    10.0
    12.5
    16.0
    20.0
    25.0
    31.5
    40.0
    50.0
    63.0
    92
    91
    89
    87
    85
    79
    76
    73
    70
    92
    91
    90
    88
    86
    80
    77
    75
    71
    94
    93
    92
    88
    88
    84
    80
    77
    74
    95
    94
    93
    89
    89
    85
    81
    78
    75
    95
    94
    93
    90
    89
    85
    81
    78
    75
    400~500
    10.0
    12.5
    16.0
    20.0
    25.0
    31.5
    40.0
    50.0
    63.0
    92
    91
    89
    87
    85
    79
    76
    73
    70
    92
    91
    90
    88
    86
    80
    77
    75
    71
    94
    93
    92
    88
    88
    84
    80
    77
    74
    95
    94
    93
    89
    89
    85
    81
    78
    75
    95
    94
    93
    90
    89
    85
    81
    78
    75

    TP型平面包络环面蜗杆减速机蜗杆蜗轮啮合滑动速度v

    输入轴转速n1(r/min)
    传动比i
    中心距a(mm)
    80
    100
    125
    160
    200
    250
    315
    400
    500
    滑动速度v(m/s)
    500
    10.0
    12.5
    16.0
    20.0
    25.0
    31.5
    40.0
    50.0
    63.0
    1.0
    1.0
    0.8
    0.8
    0.8
    0.8
    0.8
    0.8
    0.8
    1.2
    1.2
    1.0
    1.0
    1.1
    1.0
    1.0
    1.1
    1.1
    <, DIV align=center>1.5
     
    1.5
    1.2
    1.3
    1.3
    1.2
    1.3
    1.3
    1.3
    1.9
    1.9
    1.6
    1.6
    1.7
    1.6
    1.6
    1.7
    1.7
    2.4
    2.4
    2.0
    2.0
    2.1
    1.9
    2.0
    2.0
    2.1
    3.1
    3.1
    2.4
    2.4
    2.4
    2.5
    2.3
    2.4
    2.4
    3.8
    3.8
    3.1
    3.0
    3.0
    3.1
    2.9
    3.0
    3.0
    4.8
    4.9
    3.8
    3.7
    3.8
    3.8
    3.6
    3.7
    3.8
    6.0
    6.0
    4.9
    4.7
    4.8
    4.9
    4.6
    4.7
    4.8
    750
    10.0
    12.5
    16.0
    20.0
    25.0
    31.5
    40.0
    50.0
    63.0
    1.5
    1.5
    1.2
    1.2
    1.2
    1.2
    1.2
    1.2
    1.3
    1.8
    1.8
    1.5
    1.6
    1.6
    1.5
    1.5
    1.6
    1.6
    2.3
    2.3
    1.9
    1.9
    1.9
    1.8
    1.9
    1.9
    2.0
    2.8
    2.9
    2.4
    2.4
    2.5
    2.3
    2.4
    2.5
    2.5
    3.6
    3.6
    3.0
    3.1
    3.1
    2.9
    3.0
    3.1
    3.1
    4.6
    4.6
    3.7
    3.5
    3.6
    3.7
    3.5
    3.6
    3.7
    5.7
    5.7
    4.6
    4.4
    4.5
    4.6
    4.3
    4.5
    4.6
    7.3
    7.3
    5.8
    5.5
    5.7
    5.8
    5.4
    5.6
    5.7
    9.1
    9.0
    7.3
    7.0
    7.1
    7.3
    6.8
    7.1
    7.2
    1000
    10.0
    12.5
    16.0
    20.0
    25.0
    31.5
    40.0
    50.0
    63.0
    2.0
    2.0
    1.6
    1.6
    1.6
    1.5
    1.6
    1.6
    1.7
    2.4
    2.4
    2.1
    2.1
    2.2
    2.0
    2.1
    2.2
    2.2
    3.1
    3.1
    2.5
    2.6
    2.6
    2.4
    2.5
    2.6
    2.7
    3.8
    3.8
    3.2
    3.3
    3.3
    3.1
    3.2
    3.3
    3.4
    4.7
    4.8
    4.0
    4.1
    4.1
    3.9
    4.0
    4.1
    4.2
    6.1
    6.2
    4.9
    4.7
    4.8
    4.9
    4.6
    4.8
    4.9
    7.6
    7.6
    6.2
    5.9
    6.1
    6.1
    5.8
    6.0
    6.1
    9.7
    9.7
    7.7
    7.4
    7.6
    7.7
    7.2
    7.5
    7.6
    12.1
    12.1
    9.7
    9.3
    9.5
    9.7
    9.1
    9.4
    9.7
    1500
    10.0
    12.5
    16.0
    20.0
    25.0
    31.5
    40.0
    50.0
    63.0
    3.0
    3.0
    2.4
    2.4
    2.5
    2.3
    2.4
    2.4
    2.5
    3.6
    3.6
    3.1
    3.1
    3.3
    3.0
    3.1
    3.2
    3.2
    4.6
    4.6
    3.7
    3.9
    3.9
    3.6
    3.8
    3.9
    4.0
    5.7
    5.7
    4.8
    4.9
    5.0
    4.7
    4.8
    5.0
    5.0
    7.1
    7.2
    6.0
    6.1
    6.2
    5.8
    6.0
    6.1
    6.3
    9.2
    9.2
    7.3
    7.1
    7.3
    7.4
    7.0
    7.2
    7.3
    11.4
    11.5
    14.5
    14.6
    11.5
    11.1
    11.3
    11.5
    10.8
    11.2
    11.4
    18.1
    18.1
    14.6
    14.0
    14.3
    14.6
    13.7
    14.1
    14.5
    9.2
    8.9
    9.1
    9.2
    8.7
    9.0
    9.1

    注:红框内为v>10m/s,应采用循环润滑。

    TP型平面包络环面蜗杆减速机低速轴轴端许用径向负荷Fr

    减速器低速轴轴端许用径向负荷Fr

     

    负荷
    中心距a(mm)
    80
    100
    125
    160
    200
    250
    315
    400
    500
    Fr(N)
    3900
    4900
    6800
    8460
    11200
    14700
    17800
    22500
    27500

     

    TP系列减速机技术要求

    接触斑点的大小

    精度等级
    项目
    中心距a(mm)
    80~160
    >160~315
    >315~630
    7
    蜗轮齿面接触斑点
    按高度不小于70%   按宽度不小于70%
    蜗杆齿面接触斑点
    按长度不小于70%   接触部位偏向入口
    8
    蜗轮齿面接触斑点
    按高度不小于60%   按宽度不小于60%
    蜗杆齿面接触斑点
    按长度不小于60%   接触部位偏向入口

    接触斑点的大小

    侧隙jC和jb

    侧隙(μm)
    中心距a(mm)
    80~160
    >160~315
    >315~500
    中等侧隙jC≤
    220
    380
    530
    较小保证侧隙jb≤
    55
    95
    130

    轴承的轴向间隙

    轴承内径d1(mm)
    轴向间隙(μm)
    蜗杆轴承
    蜗轮轴承
    30
    0
    >30~50
    0
    20~50
    >50~80
    0
    40~70
    >80~120
    0
    50~100
    >120~180
    0
    80~150

    减速机的选用方法和润滑

        1)减速器的选用

        ①选用的已知条件:

        a.原动机类型及工作机负荷性质;

        b.额定输入功率P1(kW)或额定输出转矩T2(N·m);

        c.输入转速n1(r/min);

        d.最大输出转矩T2max(N·m)(对于低速传动的场合);

        e.传动比;

        f.输入输出轴的相对位置;

        g.输入输出轴的转向、装配型式。

        ②工作类型:

        a.负荷性质;

        b.每日运行时间(h);

        c.每小时启动次数;

        d.小时负荷率JC(%)。

        ③环境温度。

        ④输出轴轴端附加负荷。

        2)减速器的润滑

        ①蜗杆蜗轮啮合,一般采用浸油润滑,浸油液面,对于TPG型式,采用全浸;对于TPU式、TPA型式、TPS型式,液面与蜗杆轴线重合,当啮合滑动速度v>10m/s时,采用强迫润滑。

        ②在通常情况下,可根据滑动速度的大小,选择润滑油牌号,表1为推荐的润滑油牌号。

    推荐润滑油牌号

     

    黏度(cst/40℃)
    润滑油
    蜗轮蜗杆油牌号
    适用滑动速度(m/s)
    748~612
    N680蜗轮油
    1~2.5
    506~414
    N460蜗轮油
    1~2.5
    352~288
    N320蜗轮油
    2.5~5
    242~198
    N220蜗轮油
    5~10

        ③润滑油不允许采用极压齿轮油。

        ④减速器的润滑油量按油标加注,可按表2所列油量备油。

    润滑油油量

     

    中心距a(mm)
    80
    100
    125
    160
    200
    250
    315
    400
    500
    油量(L)
    1.6
    2.7
    4.7
    8.8
    16
    28
    50
    85
    160

        3)采用强制润滑

        润滑油黏度为242~198 cst/40℃,注油压力为1.5~2.5Pa,每分钟注油量按表3的规定。

    强制润滑时的注油量

     

    中心距a(mm)
    80
    100
    125
    160
    200
    250
    315
    400
    500
    注入量(L/min)
    1.5
    2
    3
    4
    6
    10
    15
    20
    20

     

     


    热卖产品
    立即咨询:13861821233 点击这里给我发送消息 售后服务